Passer au contenu

Studio Les Arcs 1800

Réaménagement complet et décoration d’un studio avec mezzanine aux Arcs, station emblématique designée par Charlotte Perriand. Bien que l’appartement ne dispose pas de mobilier signé Perriand, l’aménagement revisité en reprend l’esprit : lignes épurées, matériaux authentiques et optimisation intelligente de l’espace.

Conçu pour la location saisonnière, le projet vise à maximiser la capacité d’accueil, tout en redonnant au lieu fonctionnalité, confort et charme. L’objectif : offrir une expérience chaleureuse aux voyageurs et augmenter la rentabilité de l’appartement.

Plan existant RDC

Rénovation studio - les arcs 1800 - plan du RDC

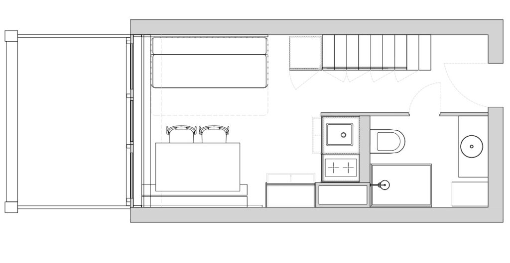
Plan projet

Rénovation studio - les arcs 1800 - plan du RDC

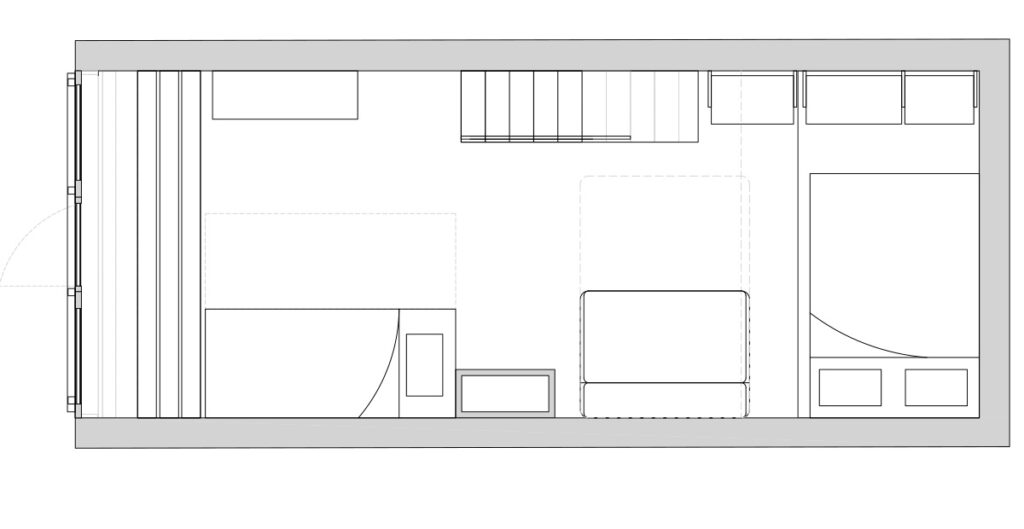
Plan projet mezzanine

Rénovation studio - les arcs 1800 - plan de la mezzanine

Élévation mur est

Elévation mur est rénovation d'un studio les Arcs 1800

Élévation mur ouest

Elévation mur ouest rénovation d'un studio les Arcs 1800

photos après travaux

Cuisine bois Les Arcs 1800
Studio les Arcs - conception architecture et décoration intérieur
Mezzanine Les Arcs 1800