Passer au contenu

Les Deux Alpes

Restructuration complète d’un studio de 23 m², qui constitue une résidence de vacances familiale et ponctuellement prêtée à des amis. Le projet inclut la création d’une véritable cuisine tout confort, l’aménagement d’un espace convivial permettant de dîner à 6/7 personnes, ainsi que la refonte de la salle de bain.

L’ensemble réinterprète le style chalet dans une approche actuelle, en mêlant tons blancs, accents verts et textures bois pour suggérer la montagne avec élégance.

PLAN EXISTANT

Plan existant studio Les deux Alpes - conception et rénovation

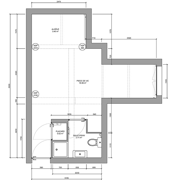
PLAN PROJET

Plan projet studio Les deux Alpes - conception et rénovation

PHOTOS APRÈS-TRAVAUX

Le salon du studio - Les Deux Alpes
Cuisine Les Deux Alpes
Alcôve du studio Les Deux Alpes
Cuisine - studio Les Deux Alpes
Salle d'eau - studio Les Deux Alpes
Entrée du studio Les Deux Alpes